- Find a Property
- Residential
- Commercial
- Farm/Ag
- Rentals
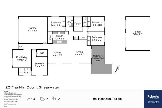
23 Franklin Court,
Shearwater
North Tasmania
Location
Agent
Corinne Price
Roberts Shearwater Pty Ltd
Life balance is very important to Corinne, so living and working in this beautiful part of Tasmania gives her the chance to,not only focus on achieving the best outcomes for her clients but to introduce new residents to the area. “We are the first impression to people looking for a new home, its important to make their experience special with personal and dedicated service. I can’t imagine doing anything else, I chose my career in real estate. Each day brings new people into my life, looking for my assistance and expertise which is very fulfilling. I have the opportunity to help them and show off this amazing place we call home”
With 30 years in sales,15 years dedicated to the real estate industry, Corinne has developed a wide range of marketing strategies and solid negotiation skills that have resulted in 100’s of sales. In 2008, Corinne and husband John, became proud part owners of Roberts Shearwater. With her team of professional and dedicated colleagues to support her, Corinne has a strong sense of responsibility and respect for all Roberts Shearwater clients and customers.
read more