Sign up

Listed 12 days ago

ID#990419

10 Hakea Court,

Portland

Far South West
$415,000
3
1
634
(6,824.31 sq.ft.)

Homely In Hakea

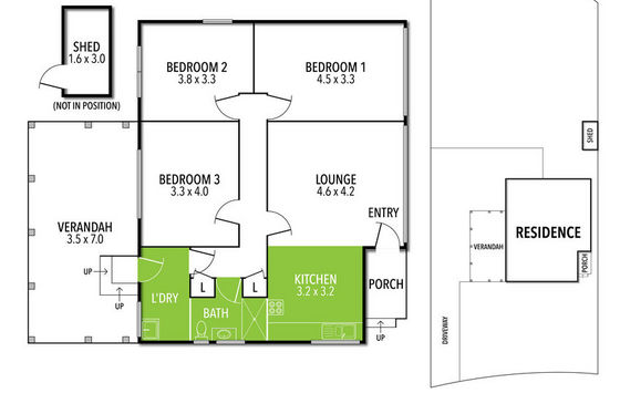
Situated in a quiet court, close to schools, daycares and playground, this homely 3 bedroom, 1 bathroom home is the perfect opportunity for first home buyers, investors or those looking to downsize.
Sitting solidly on concrete stumps, the current owners have updated the kitchen and the bathroom and have taken the time to tidy inside and out. Near new fencing and side gate surround the property and with access to the huge backyard, there is ample space for the new shed (STCA).
Entering the home you'll find a bright and open lounge/kitchen/dining area with gas heating and a split system.
All 3 bedrooms in the home are well proportioned with the main being a king plus in size.
The well-maintained backyard provides a secure space for the kids to play and the beloved pets to run while you sit back and enjoy a cuppa under the large undercover area.
Contact us today to arrange a viewing and secure your first home or investment.

Ask a question about this property

Please leave this field blank:
YOUR NAME
YOUR EMAIL
YOUR MESSAGE

Location

Points of Interest
    Loading...

Agent

Nikki Hudson

Hudson Real Estate Portland

Possessing a warmth which endears her to clients and profound wisdom for her much-loved local community, Nikki Hudson has returned to make her mark in real estate in Portland and its surrounds. With a career spanning over a decade, coupled with her strong background in marketing and retail, she will offer her clients the advantage of not only knowing how to attract potential buyers for listings but ensures everyone she interacts with in the sales process is treated with friendliness and respect.

Tasked with helping clients find buyers for their properties, attending appraisals and keeping up to date with the dynamic real estate industry, Nikki is looking forward to exceedingexpectations and securing premium sales results.

Giving back to her local community is also important to Nikki. Most of all though, she is passionate about promoting her much-loved home-town of Portland and sharing its beauty with potential buyers.

Honest, efficient and driven by the desire to continually learn and evolve for the betterment of her clients, Nikki looks forward to offering a stress-free sales experience. Contact her today on 0438 846 645 to encounter real estate with a difference at Hudson Property Agents.

read more
Contact the agent to request a Statement of Information

This property was photographed by

Kane Horwill (Area)

Media Specialist

Victoria South West

ID#990419

10 Hakea Court,

Portland

Far South West
$415,000
proudly marketed by
Nikki Hudson
Hudson Real Estate Portland
Nikki
0438 846 645
Message Me
Contact Agent To

Leave a message for Kane Horwill (Area)

Please leave this field blank:
I Would like to
NAME
EMAIL
YOUR AGENT'S NAME
PHONE
MESSAGE
SALE ORDER