Sign up

Listed about 5 years ago

ID#656755

Walwa General Store - Main St ,

Walwa

Towong
Offers Over $850,000
3
2

Walwa General Store Opportunity In The Mountains

If you have been looking for business where you can get to know the locals and make your store the focal point for the busy rural community, then this could be the one for you.

At night the stars fairly blaze and the air is a clear as crystal, the rivers flow strongly filled with Murray Cod and the seasons offer more than you think. This is where nature is at its best, you will know that you are alive, come to the Upper Murray.

The business very solid over the past 10 years of trade, with load of upside in is unique location.

Making a handsome profit for a couple or family, providing you with all you require.

Well known, established for 136 years, with no close competition, known world wide by the fishing fraternity.
Country Victoria is in the midst on a mini boom, the world has realized that we have all the ingredients for a full and holism life, far from troubled spots. Come on up!

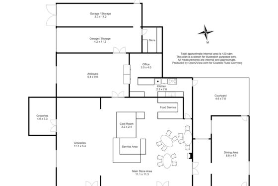
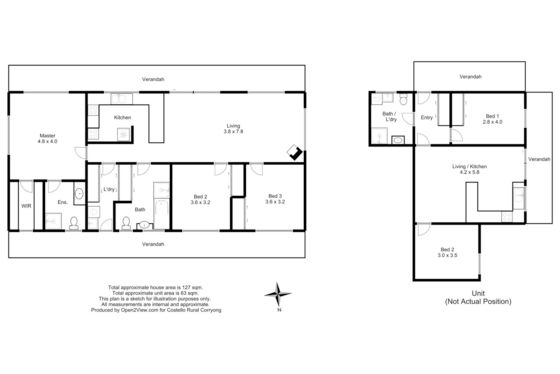
48-52 Main Street Walwa is an established retail and residential property features, Spacious three bedroom family residence , a 2 bedroom unit plus the extensive stand-alone shop building. A fuel service area on Main Street

The Site frontage is 46.5 metres to Main Street and a depth of 79.5 metres to Harvey Street at the rear. Total area of the site is approximately 2,886 sq. metres.

Ask a question about this property

Please leave this field blank:
YOUR NAME
YOUR EMAIL
YOUR MESSAGE

Agents

Justin Costello

Costello Rural Real Estate

Kerry Miller

Costello Rural Real Estate

Contact the agent to request a Statement of Information

This property was photographed by

Kate Hughes

Media Specialist

North East Victoria

ID#656755

Walwa General Store - Main St ,

Walwa

Towong
Offers Over $850,000
proudly marketed by
Justin Costello Kerry Miller
Costello Rural Real Estate
Justin
0419007925
Kerry
0438127557
Message us about this property
Contact Agent To

Leave a message for Kate Hughes

Please leave this field blank:
I Would like to
NAME
EMAIL
YOUR AGENT'S NAME
PHONE
MESSAGE
SALE ORDER